#5021230 VÓRTICE INMOBILIARIA VENDE GRAN PROYECTO EN VILLA NUEVA, GUAYMALLÉN

Federico Froebel 3528, M5519EVU Mendoza, Argentina

U$S 190.000

VÓRTICE INMOBILIARIA VENDE

Magnífico terreno esquina en venta, con construcción, ubicado en calle Froebel, esquina Lincoln, Departamento de Guaymallén, de la Provincia de Mendoza, una de las zonas más cotizadas por su proximidad a Mendoza Plaza Shopping, frente a Blas Shopping, a una cuadra de Av. Bandera de los Andes, y próximo al Acceso Este, a sólo 8 minutos de la Ciudad de Mendoza, convirtiéndolo en un punto estratégico, no sólo por su fácil acceso, si no también por su cercanía a una gran variedad de zonas de interés, tanto comerciales como gastronómicas.

El lote que comercializamos actualmente posee construido un 60% de la obra total, teniendo posibilidad de optar por la compra en el estado en que se encuentra, o bien adquirir el inmueble terminado en un 100%, en caso de inclinarse por ésta última opción, ofrecemos tres alternativas de distribución, las cuales se detallan a continuación:

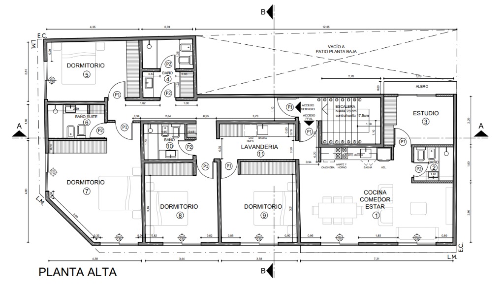
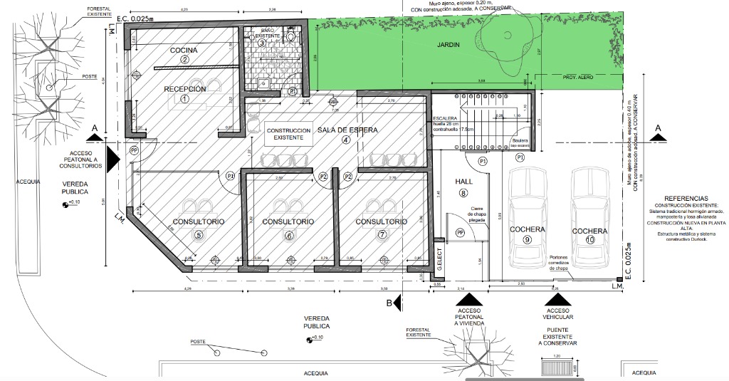
OPCIÓN 1 - vivienda única en PA y cinco consultorios/oficinas en PB:
- Planta Baja: tres consultorios, cocina, recepción, sala de espera, baño completo, jardín, baño completo, y dos cocheras.
- Planta Alta: cuatro habitaciones (una de ellas en suite), cuatro baños en total (contando el que se encuentra en suite), lavandería separada, cocina estar comedor, y un estudio.

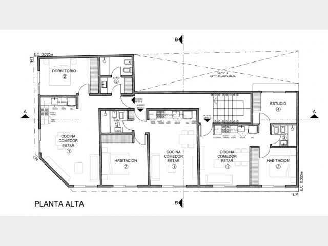
OPCIÓN 2 - tres departamentos en PA y cinco consultorios/oficinas en PB:
- Planta Baja: tres consultorios, cocina, recepción, sala de espera, baño completo, jardín, y dos cocheras.
- Planta Alta: tres departamentos individuales, dos de ellos se integran por una habitación, un baño completo y cocina estar comedor; y el tercero posee una habitación, un baño completo, cocina estar comedor y un estudio.

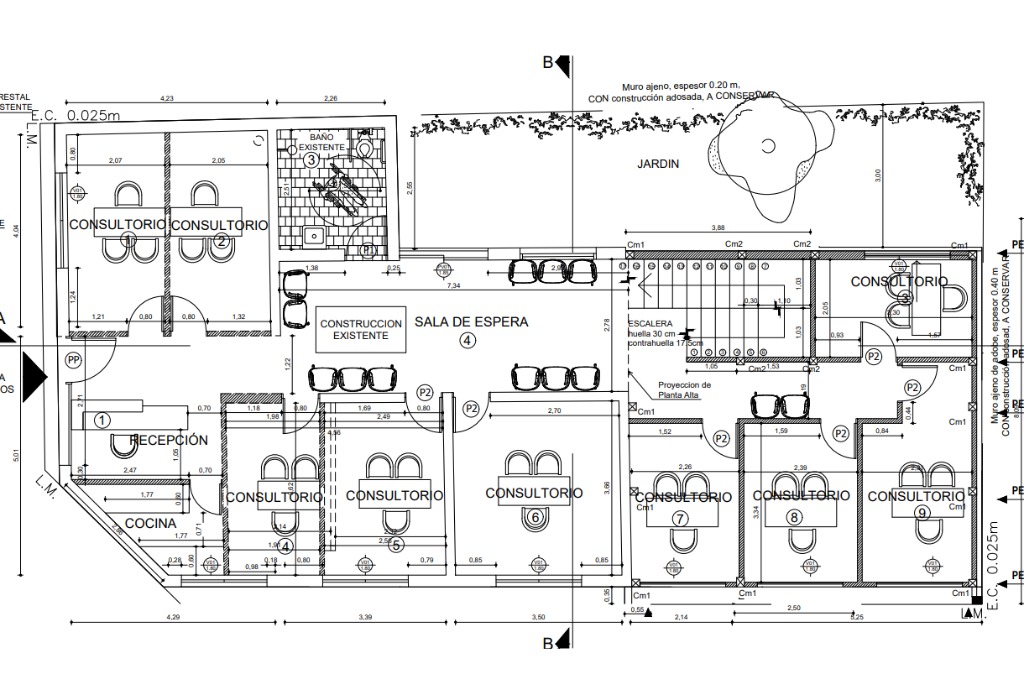
OPCIÓN 3 - quince consultorios/oficinas/coworking en PA y PB:
- Planta Baja: nueve consultorios, cocina, recepción, sala de espera, baño completo, jardín, y dos cocheras.
- Planta Alta: seis consultorios, recepción, cocina, sala de espera y un baño completo.

Cuenta con una superficie total de 203 m2, y una superficie cubierta de 313 m2 (ambas aproximadamente).

Datos importantes: posee ingreso peatonal a consultorios, e ingreso peatonal a viviendas; todos los servicios. Excelente oportunidad de inversión.

Valor de Venta estado de obra actual (60% avance): USD 600 el metro cuadrado

Valor de Venta de obra al 100%: USD 1.100 el metro cuadrado

Se evalúan permutas, y se analiza financiación.

Por cualquier consulta, no dude en contactarnos, estamos a su disposición. Corredor responsable: GROSSO, Jeremías (matrícula cpim 1957).

Nota: Los precios, distancias, características, medidas y condiciones mencionadas son aproximadas y pueden cambiar sin previo aviso. La información publicada podría contener errores y no debe considerarse como un compromiso legal o contractual. Algunas características o terminaciones pueden variar o no estar incluidas en el precio indicado. Para obtener información precisa y actualizada, le recomendamos consultar con nuestro corredor responsable. -

  • Agua corriente
  • Electricidad
  • Pavimento
  • Cochera fija cubierta
  • Gas natural
  • Cocina
  • Jardín
  • Oficina
  • Comedor
  • Patio
  • Escritorio
  • Lavadero
  • Living
  • Hall
  • Suite
  • Apto profesional
  • Luminoso
  • En construcción

Videos

Mapa

StreetView Satélite
Cargando mapa...
Vórtice Inmobiliaria
GROSSO , JEREMÍAS PABLO
Mat. - Reg. 1957
San Martín 1074 piso 3 dto A
Teléfono: 2614702854
Ver sus propiedades

Consulte por este inmueble

Enviar consulta Consultar por
Al enviar estás aceptando los
Términos y Condiciones de Uso