Nunca vamos a publicar nada en tu nombre.
| Marcar propiedades como favoritas y recordar automáticamente las últimas que visitaste. | |
| Activar una alerta para que cuando ingrese una propiedad que coincida con tu busqueda, te avise a tu email. |
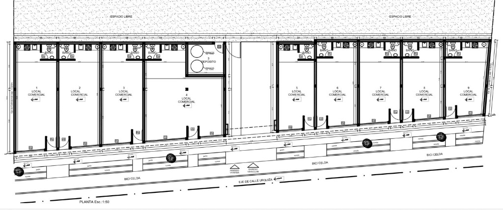
Venta de Locales Comerciales en Maipú.
Se venden 2 Locales Comerciales ideales para inversión o para establecer tu negocio en una zona de alto crecimiento y gran visibilidad en Maipú, Mendoza.
Características Destacadas:
Ubicación Estratégica: Calle Urquiza 5286, Maipú (Mendoza). Antes de llegar a Tropero Sosa.
Formato Moderno: Ubicados en un Strip Center con alto flujo de público y tránsito vehicular, lo que garantiza excelente exposición para cualquier tipo de rubro.
Superficie Individual: Cada local cuenta con 65 m² propios.
Comodidades: Cada unidad incluye su baño privado, agua, luz y gas.
Alto Potencial: Maipú es una de las zonas con mayor desarrollo comercial y residencial de Mendoza.
Entrega: Se entregan en Enero del 2026.
Precio por Local: USD 70.000.
No dejes pasar esta excelente oportunidad de inversión.
Hauser Servicios Inmobiliarios.
Mat. 1667.
Quitá las que no te interesen y enviá solicitudes de información
Nunca vamos a publicar nada en tu nombre.
El presente documento regula los términos y condiciones generales y políticas de privacidad aplicables al acceso y uso de MendozaProp.com en adelante “El Portal”. El Portal está destinado a la carga voluntaria de datos por parte de los corredores matriculados en el Colegio de Corredores Públicos Inmobiliarios de la Provincia de Mendoza, con domicilio en 25 de Mayo 1881 de la ciudad Mendoza (Código Postal M5500ABP), en adelante “El Colegio”. Asimismo, los presentes términos y condiciones regulan las relaciones entre el Colegio, la Inmobiliaria y el Usuario del Portal. La Inmobiliaria y el Usuario deberán leer y aceptar los presentes Términos y Condiciones para utilizar todos los servicios e información que se facilitan desde el Portal. El mero acceso y/o utilización del portal, de todos o parte de sus contenidos y/o servicios significa la plena aceptación de las presentes condiciones generales de uso. Los presentes Términos y Condiciones son obligatorios. Quien no los acepte, deberá abstenerse de utilizar el Portal y los servicios que el mismo presta.
Para una correcta interpretación, los vocablos que a continuación se enumeran, tendrán
el significado que aquí se le asigna a cada uno, a todos los efectos de los presentes
términos y condiciones de uso.
Términos y condiciones (en adelante TyC): Son los presentes términos y condiciones
de uso del Portal.
Portal: Es MendozaProp.com.
Colegio: Es el Colegio de Corredores Públicos Inmobiliarios de la Provincia de
Mendoza.
Inmobiliaria: Es el Corredor Público inmobiliario matriculado en el Colegio, que sube
sus ofertas de inmuebles en el Portal.
Usuario: Es la persona que accede al Portal en busca de ofertas de inmuebles.
Servicios: Para la inmobiliaria es la posibilidad de cargar datos de sus ofertas de
inmuebles en el Portal. Para el Usuario es la posibilidad de tomar conocimiento de las
ofertas de inmuebles cargadas por las Inmobiliarias.
Publicación: Es la carga de datos que, en forma voluntaria, y cumpliendo con las
presentes TyC, cada Inmobiliaria suba al Portal.
Información publicada: Se entiende por información publicada a los datos de texto,
numéricos, imágenes, contenido multimedia o cualquier otro tipo de datos, cualquiera
sea su formato, que la Inmobiliaria incluya en su publicación.
American Dev: Es American Dev S.A., CUIT 30-71609872-5, con domicilio en la
calle Belgrano 2698, P.A. Depto. 1. American Dev es la desarrolladora tecnológica del
Portal.
Inmokey: Es sistema de gestión Inmokey.com., de propiedad de American Dev S.A.,
utilizado como software para carga de datos sobre inmuebles por parte de las
Inmobiliarias.
El Portal se reserva la facultad de modificar en cualquier momento los TyC, sin necesidad de comunicación previa. Las modificaciones entrarán en vigencia desde el momento que se indique; en su defecto, se entenderá que su aplicación es inmediata. El uso continuo del Portal significa la aceptación de esos cambios.
El dominio y la marca www.mendozaprop.com , son propiedad del Colegio. El Portal funciona con tecnología de propiedad de American Dev utilizando como software para carga de los inmuebles el sistema de gestión de su propiedad denominado Inmokey.com. Los dominios, marcas y la tecnología se encuentran protegidos por la normativa sobre propiedad intelectual. El contenido del Portal y la información publicada son provistos al Usuario al solo efecto de que pueda conocer los inmuebles publicados por las Inmobiliarias, y no pueden ser utilizados, copiados, reproducidos, distribuidos, transmitidos, exhibidos, vendidos, licenciados, o explotados de cualquier otra forma para ningún otro fin, sin el previo permiso escrito de sus respectivos dueños. Tanto el Usuario como las Inmobiliarias se abstendrán de llevar a cabo cualquier conducta en el uso del Sitio que atente contra los derechos de propiedad intelectual o industrial del American Dev S.A., del Colegio y/o de terceros, o que vulnere o transgreda el honor, la intimidad personal o familiar o la imagen de terceros, o que sean ilícitos o atenten a contra la moral y las buenas costumbres, y deberá mantener indemnes a los perjudicados frente a cualquier reclamo, judicial o extrajudicial que se presente frente a estos como consecuencia de dicho uso.
Queda prohibida la utilización del Sitio Web y/o de los Servicios ofrecidos a través del mismo por personas incapaces o menores de edad según la normativa vigente.
El acceso y uso del Portal es completamente gratuito para el Usuario.
El Portal no es intermediario y no tiene vínculo alguno con la información de las Inmobiliarias. El Portal no ofrece los inmuebles ni la información publicada, ni tiene intervención alguna en las eventuales operaciones que se realicen sobre los inmuebles, siendo completamente ajeno a las mismas. El Portal es simplemente un medio de publicación en Internet de la información provista por las Inmobiliarias. La información publicada es de exclusiva responsabilidad de las Inmobiliarias que la suben al Portal. El Portal no asume obligación alguna de almacenamiento de la información publicada una vez que sea retirada. La información publicada es orientativa y de exclusiva responsabilidad de las Inmobiliarias. El Portal no garantiza que los inmuebles publicados como disponibles lo estén en la realidad. El portal no otorga ninguna garantía de cualquier naturaleza, ya sea expresa o implícita, sobre los datos, contenidos, información y servicios que se incorporan y ofrecen desde el Portal. El Portal no garantiza ni asume responsabilidad alguna respecto a los posibles daños y perjuicios causados por el uso y utilización de la información, datos y servicios del Portal. El Portal no se responsabiliza por las diferencias que pudieran existir entre la información publicada por las Inmobiliarias y la realidad. La información contenida en los inmuebles publicados en el Portal es orientativa y aproximada. Por lo tanto, el Portal no se responsabiliza por las diferencias que puedan existir entre ellos y la realidad, ni por la veracidad, exactitud, calidad y corrección de esa información. El Portal y los servicios se suministran tal como están, sin garantías de ninguna clase. El Portal se reserva el derecho de publicar, o de no hacerlo, cada una de las ofertas de inmuebles recibidas por las Inmobiliarias. Se deja expresamente aclarado que American Dev actúa exclusivamente como desarrolladora tecnológica del Portal y no tiene relación ni responsabilidad alguna respecto de la información publicada, ni en las relaciones entre el Usuario, la Inmobiliaria y el Colegio.
Se recomienda al Usuario verificar la veracidad de la información publicada por la Inmobiliaria y tomar todos los resguardos legales y comerciales y verificar la información personalmente, antes de efectuar cualquier pago o reserva.
Para hacer uso del servicio, la Inmobiliaria debe estar registrada en el sitio
InmOkey.com, que es el sistema de gestión por el que se cargan o dan de alta los
inmuebles a ser publicados. No se requiere un Plan PRO para la publicación en el
Portal, pero si la Inmobiliaria tiene o tuvo un Plan de publicación PRO es necesario que
dicho plan esté vigente y no presente deudas impagas con American Dev. Si la
Inmobiliaria utiliza un Plan PRO de InmOkey y desea hacer un downgrade de su plan a
la cuenta FREE, podrá hacerlo sin ningún inconveniente siempre y cuando no tenga
deuda u órdenes de pago vencidas impagas en su sistema InmOkey y deberá solicitarlo
expresamente por chat desde el interior de su panel de gestión. La Inmobiliaria deberá
tener al menos un inmueble publicado para poder usar del servicio. La Inmobiliaria es
responsable por la veracidad, exactitud y calidad de la información que publique en el
Portal, tanto de los inmuebles como de los datos de la Inmobiliaria. Queda prohibido a
la Inmobiliaria el uso incorrecto de los recursos tecnológicos de carga de propiedades,
por ejemplo, se encuentra prohibido poner datos de contacto en la sección de
“Descripción” de una ficha de un inmueble o utilizar el lugar donde se suben las
“Fotografías o Planos” de los inmuebles para poner Logotipos o Datos de contacto de la
inmobiliaria que publica el inmueble. Está prohibido duplicar inmuebles para lograr
tener una mayor cantidad de oferta en el Portal.
En el caso de las imágenes incorporadas en la información publicada, la Inmobiliaria
garantiza que es titular de derechos o cuenta con las respectivas autorizaciones, para
ejercer todos los derechos de propiedad intelectual involucrados, entre otros, los
derechos de publicación, comunicación y puesta a disposición, reproducción, adaptación
y distribución de las imágenes. Por lo tanto, la Inmobiliaria reconoce su absoluta
responsabilidad por la publicación de cada una de las imágenes que publique como
información. El Portal no asume responsabilidad alguna frente a terceros, en el eventual
supuesto que la publicación de las imágenes en el Portal, infrinja derechos de terceros.
En tal caso, el Portal procederá a la inmediata eliminación de la información. El Portal
podrá adaptar las imágenes a fin de adecuarlas a los formatos y requerimientos del
sistema.
La persona que ingresa al Portal, reviste la condición de “Usuario” del mismo. El acceso a determinadas funciones del Portal requiere la identificación del Usuario a través de sus cuentas de Facebook o Google, con información personal exacta, precisa y verdadera (“Datos Personales”), que el Usuario debe mantener actualizados conforme resulte necesario. Es responsabilidad exclusiva del Usuario la veracidad, exactitud, vigencia y actualización de los Datos Personales ingresados. El Usuario que acceda con su cuentas de Google o Facebook es considerado como Usuario Registrado. El Portal no tiene cómo comprobar que quien ingresa con dichas cuentas sea su titular. Por lo tanto, será responsabilidad de cada Usuario registrado tomar los resguardos necesarios para evitar inconvenientes por el uso de sus datos identificatorios, por una persona distinta del Usuario registrado. La registración no es requisito para el acceso al Sitio y sus funciones básicas, reservándose el Portal la posibilidad de modificar sin necesidad de notificación previa de ningún tipo, las funciones que quedan abiertas al acceso sin registración y cuáles son exclusivas para los Usuarios registrados. El Usuario que no acceda por medio de sus cuentas de Google o Facebook, será considerado como Usuario no registrado. El Usuario, registrado o no, será responsable por todos los usos que le de al Portal. El Usuario se compromete a notificar al Portal en forma inmediata y por medio idóneo y fehaciente, cualquier uso no autorizado de su Cuenta, así como el ingreso por terceros no autorizados a la misma. El Usuario es responsable por el buen uso del servicio, comprometiéndose expresamente a evitar cualquier tipo de acción que pueda dañar los sistemas, equipos o servicios a los que acceda en forma directa o indirecta a través de Internet, incluyendo la congestión intencional de enlaces o sistemas. El Usuario asume plena responsabilidad frente al Portal y a terceros por daños y perjuicios que se produjeran como consecuencia del accionar propio, de sus dependientes o de terceros conectados a través del Usuario y los que resulten de la inobservancia de la normativa vigente o del mal uso que se haga del servicio, debiendo el Usuario indemnizar y mantener indemne al perjudicado ante cualquier reclamo de pago que pudiera corresponder. El Usuario se compromete a: 1) No intentar acceder a datos restringidos o intentar violar las barreras de seguridad para llegar a ellos. 2) No realizar búsquedas de vulnerabilidades o explotación de las mismas para cualquier fin. 3) No divulgar información acerca de la detección de vulnerabilidades encontradas en el Portal.
Ni el Portal ni American Dev tendrán responsabilidad alguna por:
- El contenido de la información publicada.
- El mal uso que terceros realicen de la información publicada.
- Las interrupciones, demoras y fallas que puedan originarse en los enlaces
telefónicos y/o conexiones y/o transmisiones que se establezcan con el Portal, ni
por las interrupciones, demoras y fallas que afecten a los equipos informáticos
que ponen y mantienen el Portal en funcionamiento. Tampoco garantiza
inmediatez en la corrección de los defectos.
- El uso indebido que hagan los Usuarios de los contenidos del Portal.
- Daños causados por terceros.
- Daños causados por las Inmobiliarias, los Usuarios, sus dependientes o terceros
conectados a través de los mismos, y que resulten de la inobservancia de las
normativa vigente y de las presentes TyC.
- El Portal no puede garantizar que la transmisión de información sea
completamente segura. Las Inmobiliarias y los Usuarios asumen este riesgo.
El Portal se reserva el derecho a dar de baja en cualquier momento la información publicada total o parcialmente. A su vez, el Portal podrá dar de baja a la Inmobiliaria en los siguientes casos: 1) No tener publicados en el Portal un mínimo de un inmueble. 2) Por falta de veracidad y/o exactitud y/o calidad y/o corrección de la información contenida en los inmuebles publicados en el Portal por la Inmobiliaria. 3) El incumplimiento de cualquier otra obligación establecida en los presentes TyC. 4) Por revestir la condición de deudor de American Dev por incumplimiento de pagos de un plan PRO de Inmokey.
La prestación del Servicio del Portal tiene una duración indeterminada. Sin perjuicio de ello, el Colegio está autorizado, en cualquier momento, a dar por terminada o a suspender la prestación del Servicio del Portal y/o de la información publicada.
El presente documento regula los términos y condiciones generales y políticas de privacidad aplicables al acceso y uso de MendozaProp.com en adelante “El Portal”. El Portal está destinado a la carga voluntaria de datos por parte de los corredores matriculados en el Colegio de Corredores Públicos Inmobiliarios de la Provincia de Mendoza, con domicilio en 25 de Mayo 1881 de la ciudad Mendoza (Código Postal M5500ABP), en adelante “El Colegio”. Asimismo, los presentes términos y condiciones regulan las relaciones entre el Colegio, la Inmobiliaria y el Usuario del Portal. La Inmobiliaria y el Usuario deberán leer y aceptar los presentes Términos y Condiciones para utilizar todos los servicios e información que se facilitan desde el Portal. El mero acceso y/o utilización del portal, de todos o parte de sus contenidos y/o servicios significa la plena aceptación de las presentes condiciones generales de uso. Los presentes Términos y Condiciones son obligatorios. Quien no los acepte, deberá abstenerse de utilizar el Portal y los servicios que el mismo presta.
Para una correcta interpretación, los vocablos que a continuación se enumeran, tendrán
el significado que aquí se le asigna a cada uno, a todos los efectos de los presentes
términos y condiciones de uso.
Términos y condiciones (en adelante TyC): Son los presentes términos y condiciones
de uso del Portal.
Portal: Es MendozaProp.com.
Colegio: Es el Colegio de Corredores Públicos Inmobiliarios de la Provincia de
Mendoza.
Inmobiliaria: Es el Corredor Público inmobiliario matriculado en el Colegio, que sube
sus ofertas de inmuebles en el Portal.
Usuario: Es la persona que accede al Portal en busca de ofertas de inmuebles.
Servicios: Para la inmobiliaria es la posibilidad de cargar datos de sus ofertas de
inmuebles en el Portal. Para el Usuario es la posibilidad de tomar conocimiento de las
ofertas de inmuebles cargadas por las Inmobiliarias.
Publicación: Es la carga de datos que, en forma voluntaria, y cumpliendo con las
presentes TyC, cada Inmobiliaria suba al Portal.
Información publicada: Se entiende por información publicada a los datos de texto,
numéricos, imágenes, contenido multimedia o cualquier otro tipo de datos, cualquiera
sea su formato, que la Inmobiliaria incluya en su publicación.
American Dev: Es American Dev S.A., CUIT 30-71609872-5, con domicilio en la
calle Belgrano 2698, P.A. Depto. 1. American Dev es la desarrolladora tecnológica del
Portal.
Inmokey: Es sistema de gestión Inmokey.com., de propiedad de American Dev S.A.,
utilizado como software para carga de datos sobre inmuebles por parte de las
Inmobiliarias.
El Portal se reserva la facultad de modificar en cualquier momento los TyC, sin necesidad de comunicación previa. Las modificaciones entrarán en vigencia desde el momento que se indique; en su defecto, se entenderá que su aplicación es inmediata. El uso continuo del Portal significa la aceptación de esos cambios.
El dominio y la marca www.mendozaprop.com , son propiedad del Colegio. El Portal funciona con tecnología de propiedad de American Dev utilizando como software para carga de los inmuebles el sistema de gestión de su propiedad denominado Inmokey.com. Los dominios, marcas y la tecnología se encuentran protegidos por la normativa sobre propiedad intelectual. El contenido del Portal y la información publicada son provistos al Usuario al solo efecto de que pueda conocer los inmuebles publicados por las Inmobiliarias, y no pueden ser utilizados, copiados, reproducidos, distribuidos, transmitidos, exhibidos, vendidos, licenciados, o explotados de cualquier otra forma para ningún otro fin, sin el previo permiso escrito de sus respectivos dueños. Tanto el Usuario como las Inmobiliarias se abstendrán de llevar a cabo cualquier conducta en el uso del Sitio que atente contra los derechos de propiedad intelectual o industrial del American Dev S.A., del Colegio y/o de terceros, o que vulnere o transgreda el honor, la intimidad personal o familiar o la imagen de terceros, o que sean ilícitos o atenten a contra la moral y las buenas costumbres, y deberá mantener indemnes a los perjudicados frente a cualquier reclamo, judicial o extrajudicial que se presente frente a estos como consecuencia de dicho uso.
Queda prohibida la utilización del Sitio Web y/o de los Servicios ofrecidos a través del mismo por personas incapaces o menores de edad según la normativa vigente.
El acceso y uso del Portal es completamente gratuito para el Usuario.
El Portal no es intermediario y no tiene vínculo alguno con la información de las Inmobiliarias. El Portal no ofrece los inmuebles ni la información publicada, ni tiene intervención alguna en las eventuales operaciones que se realicen sobre los inmuebles, siendo completamente ajeno a las mismas. El Portal es simplemente un medio de publicación en Internet de la información provista por las Inmobiliarias. La información publicada es de exclusiva responsabilidad de las Inmobiliarias que la suben al Portal. El Portal no asume obligación alguna de almacenamiento de la información publicada una vez que sea retirada. La información publicada es orientativa y de exclusiva responsabilidad de las Inmobiliarias. El Portal no garantiza que los inmuebles publicados como disponibles lo estén en la realidad. El portal no otorga ninguna garantía de cualquier naturaleza, ya sea expresa o implícita, sobre los datos, contenidos, información y servicios que se incorporan y ofrecen desde el Portal. El Portal no garantiza ni asume responsabilidad alguna respecto a los posibles daños y perjuicios causados por el uso y utilización de la información, datos y servicios del Portal. El Portal no se responsabiliza por las diferencias que pudieran existir entre la información publicada por las Inmobiliarias y la realidad. La información contenida en los inmuebles publicados en el Portal es orientativa y aproximada. Por lo tanto, el Portal no se responsabiliza por las diferencias que puedan existir entre ellos y la realidad, ni por la veracidad, exactitud, calidad y corrección de esa información. El Portal y los servicios se suministran tal como están, sin garantías de ninguna clase. El Portal se reserva el derecho de publicar, o de no hacerlo, cada una de las ofertas de inmuebles recibidas por las Inmobiliarias. Se deja expresamente aclarado que American Dev actúa exclusivamente como desarrolladora tecnológica del Portal y no tiene relación ni responsabilidad alguna respecto de la información publicada, ni en las relaciones entre el Usuario, la Inmobiliaria y el Colegio.
Se recomienda al Usuario verificar la veracidad de la información publicada por la Inmobiliaria y tomar todos los resguardos legales y comerciales y verificar la información personalmente, antes de efectuar cualquier pago o reserva.
Para hacer uso del servicio, la Inmobiliaria debe estar registrada en el sitio
InmOkey.com, que es el sistema de gestión por el que se cargan o dan de alta los
inmuebles a ser publicados. No se requiere un Plan PRO para la publicación en el
Portal, pero si la Inmobiliaria tiene o tuvo un Plan de publicación PRO es necesario que
dicho plan esté vigente y no presente deudas impagas con American Dev. Si la
Inmobiliaria utiliza un Plan PRO de InmOkey y desea hacer un downgrade de su plan a
la cuenta FREE, podrá hacerlo sin ningún inconveniente siempre y cuando no tenga
deuda u órdenes de pago vencidas impagas en su sistema InmOkey y deberá solicitarlo
expresamente por chat desde el interior de su panel de gestión. La Inmobiliaria deberá
tener al menos un inmueble publicado para poder usar del servicio. La Inmobiliaria es
responsable por la veracidad, exactitud y calidad de la información que publique en el
Portal, tanto de los inmuebles como de los datos de la Inmobiliaria. Queda prohibido a
la Inmobiliaria el uso incorrecto de los recursos tecnológicos de carga de propiedades,
por ejemplo, se encuentra prohibido poner datos de contacto en la sección de
“Descripción” de una ficha de un inmueble o utilizar el lugar donde se suben las
“Fotografías o Planos” de los inmuebles para poner Logotipos o Datos de contacto de la
inmobiliaria que publica el inmueble. Está prohibido duplicar inmuebles para lograr
tener una mayor cantidad de oferta en el Portal.
En el caso de las imágenes incorporadas en la información publicada, la Inmobiliaria
garantiza que es titular de derechos o cuenta con las respectivas autorizaciones, para
ejercer todos los derechos de propiedad intelectual involucrados, entre otros, los
derechos de publicación, comunicación y puesta a disposición, reproducción, adaptación
y distribución de las imágenes. Por lo tanto, la Inmobiliaria reconoce su absoluta
responsabilidad por la publicación de cada una de las imágenes que publique como
información. El Portal no asume responsabilidad alguna frente a terceros, en el eventual
supuesto que la publicación de las imágenes en el Portal, infrinja derechos de terceros.
En tal caso, el Portal procederá a la inmediata eliminación de la información. El Portal
podrá adaptar las imágenes a fin de adecuarlas a los formatos y requerimientos del
sistema.
La persona que ingresa al Portal, reviste la condición de “Usuario” del mismo. El acceso a determinadas funciones del Portal requiere la identificación del Usuario a través de sus cuentas de Facebook o Google, con información personal exacta, precisa y verdadera (“Datos Personales”), que el Usuario debe mantener actualizados conforme resulte necesario. Es responsabilidad exclusiva del Usuario la veracidad, exactitud, vigencia y actualización de los Datos Personales ingresados. El Usuario que acceda con su cuentas de Google o Facebook es considerado como Usuario Registrado. El Portal no tiene cómo comprobar que quien ingresa con dichas cuentas sea su titular. Por lo tanto, será responsabilidad de cada Usuario registrado tomar los resguardos necesarios para evitar inconvenientes por el uso de sus datos identificatorios, por una persona distinta del Usuario registrado. La registración no es requisito para el acceso al Sitio y sus funciones básicas, reservándose el Portal la posibilidad de modificar sin necesidad de notificación previa de ningún tipo, las funciones que quedan abiertas al acceso sin registración y cuáles son exclusivas para los Usuarios registrados. El Usuario que no acceda por medio de sus cuentas de Google o Facebook, será considerado como Usuario no registrado. El Usuario, registrado o no, será responsable por todos los usos que le de al Portal. El Usuario se compromete a notificar al Portal en forma inmediata y por medio idóneo y fehaciente, cualquier uso no autorizado de su Cuenta, así como el ingreso por terceros no autorizados a la misma. El Usuario es responsable por el buen uso del servicio, comprometiéndose expresamente a evitar cualquier tipo de acción que pueda dañar los sistemas, equipos o servicios a los que acceda en forma directa o indirecta a través de Internet, incluyendo la congestión intencional de enlaces o sistemas. El Usuario asume plena responsabilidad frente al Portal y a terceros por daños y perjuicios que se produjeran como consecuencia del accionar propio, de sus dependientes o de terceros conectados a través del Usuario y los que resulten de la inobservancia de la normativa vigente o del mal uso que se haga del servicio, debiendo el Usuario indemnizar y mantener indemne al perjudicado ante cualquier reclamo de pago que pudiera corresponder. El Usuario se compromete a: 1) No intentar acceder a datos restringidos o intentar violar las barreras de seguridad para llegar a ellos. 2) No realizar búsquedas de vulnerabilidades o explotación de las mismas para cualquier fin. 3) No divulgar información acerca de la detección de vulnerabilidades encontradas en el Portal.
Ni el Portal ni American Dev tendrán responsabilidad alguna por:
- El contenido de la información publicada.
- El mal uso que terceros realicen de la información publicada.
- Las interrupciones, demoras y fallas que puedan originarse en los enlaces
telefónicos y/o conexiones y/o transmisiones que se establezcan con el Portal, ni
por las interrupciones, demoras y fallas que afecten a los equipos informáticos
que ponen y mantienen el Portal en funcionamiento. Tampoco garantiza
inmediatez en la corrección de los defectos.
- El uso indebido que hagan los Usuarios de los contenidos del Portal.
- Daños causados por terceros.
- Daños causados por las Inmobiliarias, los Usuarios, sus dependientes o terceros
conectados a través de los mismos, y que resulten de la inobservancia de las
normativa vigente y de las presentes TyC.
- El Portal no puede garantizar que la transmisión de información sea
completamente segura. Las Inmobiliarias y los Usuarios asumen este riesgo.
El Portal se reserva el derecho a dar de baja en cualquier momento la información publicada total o parcialmente. A su vez, el Portal podrá dar de baja a la Inmobiliaria en los siguientes casos: 1) No tener publicados en el Portal un mínimo de un inmueble. 2) Por falta de veracidad y/o exactitud y/o calidad y/o corrección de la información contenida en los inmuebles publicados en el Portal por la Inmobiliaria. 3) El incumplimiento de cualquier otra obligación establecida en los presentes TyC. 4) Por revestir la condición de deudor de American Dev por incumplimiento de pagos de un plan PRO de Inmokey.
La prestación del Servicio del Portal tiene una duración indeterminada. Sin perjuicio de ello, el Colegio está autorizado, en cualquier momento, a dar por terminada o a suspender la prestación del Servicio del Portal y/o de la información publicada.
La presente Política de Privacidad establece los términos en que el Portal usa y protege la información que es proporcionada por el Usuario al navegar por el Portal. Cuando se le solicita llenar los campos de información personal con la cual el Usuario puede ser identificado, lo hacemos asegurando que sólo se empleará de acuerdo con los términos de estos TyC. Sin embargo esta Política de Privacidad puede cambiar con el tiempo o ser actualizada por lo que le recomendamos y enfatizamos revisar continuamente esta página para asegurarse que está de acuerdo con dichos cambios. Al registrarse en el Portal, el Usuario presta su consentimiento para que se utilice su información personal de acuerdo con las políticas que se describen a continuación y que integran los TyC.
El Portal podrá recoger información personal por ejemplo: nombre, información de contacto como su número telefónico y dirección de correo electrónico e información demográfica. Esos datos no serán usados con otra finalidad distinta que aquella para la que fueron recolectados en cada oportunidad, excepto en el caso que sea requerido de otro modo por la ley.
El Portal emplea la información con el fin de proporcionar el mejor servicio posible, particularmente para mantener un registro de usuarios, de búsquedas y alertas. Es posible que sean enviados correos electrónicos periódicamente a través del Portal para difundir propiedades que coincidan con la búsqueda del Usuario, nuevos productos y otra información publicitaria que se considere de relevancia para el Usuario. Estos correos electrónicos serán enviados a la dirección que el Usuario proporcione y podrán ser cancelados en cualquier momento. El Usuario garantiza y responde, en cualquier caso, de la veracidad, exactitud, vigencia y autenticidad de la información personal facilitada, y se compromete a mantenerla debidamente actualizada. No se requiere que el Usuario proporcione información personal como condición para usar Portal, a menos que sea necesario para proveerle información adicional que el Usuario solicite. Cuando el Usuario utiliza el Portal, almacenamos datos en nuestros servidores para posibilitar la conexión y por cuestiones de seguridad. Estos datos pueden incluir el nombre de su proveedor de servicio de Internet y el Sitio web que el Usuario ha usado para vincularse al Portal, su dirección IP, la fecha y duración de sus visitas al Portal. Estos datos podrían conducir posiblemente a su identificación. Los datos son utilizados periódicamente para fines estadísticos, manteniendo el anonimato de cada usuario individual de manera tal que la persona no pueda ser identificada. Los datos personales se reúnen exclusivamente si el Usuario los proporciona, a través de su identificación por sus cuentas de Facebook o Google o a través de una consulta a una Inmobiliaria determinada mediante el formulario de contacto o de correos electrónicos a la Inmobiliaria o por whatsapp a la Inmobiliara, como parte de un pedido de mayor información, de consultas o solicitudes del Usuario a la Inmobiliaria, y situaciones similares en las que el Usuario haya elegido proveer esa información. El Portal mantiene el control de y la responsabilidad del uso de cualquier dato personal que el Usuario proporcione y solo se lo utiliza para contactarlo por vía electrónica o telefónica.
El Portal emplea las cookies para poder identificar las páginas que son visitadas y su frecuencia. Esta información es empleada únicamente para análisis estadístico y después la información se elimina de forma permanente. Usted puede eliminar las cookies en cualquier momento desde su ordenador. Sin embargo las cookies ayudan a proporcionar un mejor servicio de los sitios web, estás no dan acceso a información de su ordenador ni de usted, a menos de que usted así lo quiera y la proporcione directamente. Usted puede aceptar o negar el uso de cookies, sin embargo la mayoría de navegadores aceptan cookies automáticamente pues sirve para tener un mejor servicio web. También usted puede cambiar la configuración de su ordenador para declinar las cookies. Si se declinan es posible que no pueda utilizar algunos de nuestros servicios.
El Portal puede contener enlaces a otros sitios que podrían ser de su interés. Una vez que usted de clic en estos enlaces y abandone Portal, ya no tenemos control sobre el sitio al que es redirigido y por lo tanto no somos responsables de los términos o privacidad ni de la protección de sus datos en esos otros sitios terceros. Dichos sitios están sujetos a sus propias políticas de privacidad por lo cual es recomendable que los consulte para confirmar que usted está de acuerdo con estas.
El Portal no venderá, cederá ni distribuirá la información personal que es recopilada sin su consentimiento, salvo que sea requerido por un juez con una orden judicial.
El Usuario podrá ejercer los derechos de acceso, rectificación y supresión de los datos, conforme a la Ley 25.326.
Los presentes TyC se rigen por las leyes de la República Argentina. En caso de cualquier controversia respecto de la interpretación o cumplimiento de los TyC, el Portal, el Usuario y la Inmobiliaria, se someten a la competencia del Tribunales Ordinarios en lo Civil Comercial de la Ciudad de Mendoza, con renuncia a todo otro fuero o jurisdicción.
